Referenzen
Was wir bereits umgesetzt haben
Referenzprojekte
Forschung und Entwicklung Woodule

Woodule: Basis- Holzbaumodule für den Wohnungs und Bürobau
Ziel unserer Entwicklung des Woodule ist ein Baukastensystem, welches uns erlaubt verschiedenste Wünsche und Nutzungen mit einer Handvoll Module abzudecken. Die Module können vorfabriziert werden und Passen zu je zweien auf einen Standard-LKW. Die Technikzelle beinhaltet die Nasszelle sowie die gesamte Gebäudetechnik und Elektrotechnik einer Einheit. Die Technikzelle ist zwei Module breit.

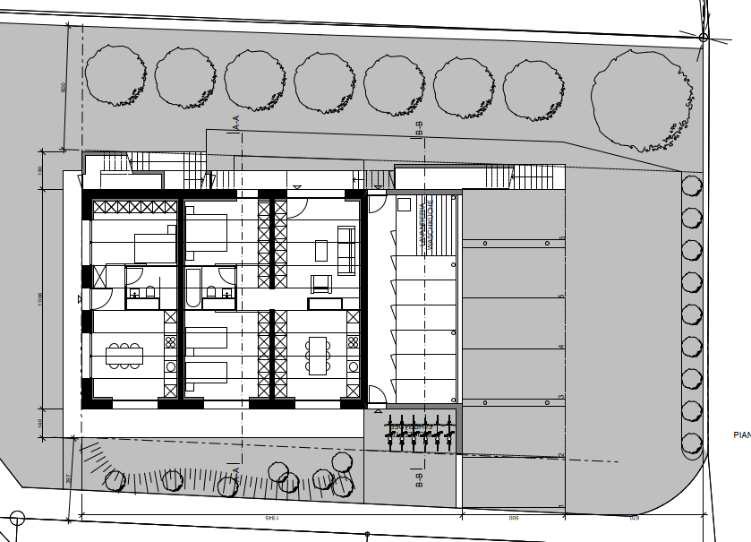
Prototyp MFH Preonzo
In Preonzo im Tessin wird ein MFH aus den Tiny- Modulen erstellt. Total 7 Einheiten von 50 – 100 m2 Wohnfläche.
Das Gebäude wird Minergie-P zertifiziert.
Stand des Projekts: Baueingabe läuft.
Meier-Kopp Service AG

Klimatisierung Hotel Europe, Luzern
Im Hotel Europe wird Trakt um Trakt klimatisiert, bis alle vier Trakte angeschlossen sind. Den Anfang machte 2012 der Trakt Rigi. Dieser ist ausserhalb unserer Projekte.
Etappe 1 2019:
Bau der Infrastruktur für die Klimatisierung aller Trakte, sowie die Klimatisierung des Bellerivetrakts. Im alten Waschhaus wurde eine Kältemaschine installiert, sowie der Installationsplatz für eine weitere Vorbereitet. Der Kälteverteiler hat Reserveplätze für zukünftige Etappen
Etappe 2: 2023-24
Klimatisierung des Fronttrakts. Die Zimmer werden aktuell nicht umgebaut, weshalb versucht wird die Klimageräte auf eine minimal- invasive Bauart einzubauen.
In einer Studie zeigen wir, wie auch der Rigitrakt in unsere Infrastruktur eingebunden werden könnte.

Mieterausbau Deloitte Prime 2, Zürich 2020-2021
Der 4 Bürogeschosse und einen grossen Empfang umfassende Mieterausbau zum neuen Hauptsitz der Firma Deloitte wurde 2020 – 2021 erstellt. Gemeinsam mit unserem Netzwerk erstellten wir die Ausführungsunterlagen HLKS für dieses Projekt und machten die Fachbauleitung.
Umbau Nestlé Werk Basel 8.OG 2021-22
Das 8.OG im Bau 20/25 des Werks Basel wird zu einem Bürogeschoss umgebaut. Das Geschoss umfasst ein Grossraumbüro, Sitzungszimmer, eine Mitarbeiterküche und ein QS- Labor für den Betrieb. Entsprechend wird das Geschoss gelüftet, geheizt und klimatisiert.
Unser Perimeter umfasst die HLK Planung und die Fachbauleitung.
(Aufgrund einer Weisung von Néstlé darf ich kein Bildmaterial des Projekts veröffentlichen)
Halter Generalunternehmung AG Renovationen

Einkaufszentrum Neumarkt Oerlikon 2019-20

Neumarktplatz 4, Brugg, 2019
MAB Gesundheitszentrum OYU, Sihlstrasse 3, 8001 Zürich 2022-23
Nach dem Grundausbau im Gebäude Sihlstrasse 3 dürfen wir auch den Mieterausbau planen und begleiten.
Auf drei Geschossen befinden sich ein Restaurant, Beratungs- und Massageräume neben den dafür benötigten Nasszellen.
Das Projekt haben wir zusammen mit unserem Netzwerk, JH- Planung GmbH und Reu GmbH geplant und betreut.
Oppliger Haustechnik AG, Othmarsingen

EFH Zingg, Planung Heizung / Sanitär

Gewerbeanbau MELU Möriken
Diverse Kunden

Teilausbau Meret Oppenheim Hochhaus 4.OG
Kunde: HRS Generalunternehmung
HRS war mit den Leistungen des Haustechnikplaners vor uns nicht zufrieden und hat uns darum das Mandat übertragen. In rollender Planung, während der Ausführungsphase planten und koordinierten wir die HKL Installationen, damit das Projekt doch noch Fristgerecht abgeschlossen und der Bauherrschaft übergeben werden konnte.

Schadensexpertise Eisspeicher Kantonsschule Menzingen ZG
Kunde: Zürich Versicherungen
Die Kantonsschule Menzingen wird im Sommer über einen Eisspeicher mit einem Inhalt von 600 m3 gekühlt. Im Winter wird der Speicher als Wärmequelle einer Wärmepumpe verwendet und so geladen. Im Juni 2019 ist die Konstruktion im Eisspeicher während der Wartungsarbeiten zusammengebrochen.
In Zusammenarbeit mit Meier- Kopp Service AG in Zürich untersuchten wir die Ursachen für den Zusammenbruch des Eisspeichers der Kantonsschule Menzingen und erstellten zuhanden der Versicherung eine Expertise.
Bauleitungsmandat Swisslife Brannhof, 8001 Zürich, 2022-23
Kunde: Implenia Schweiz AG
Als Bauleiter Fachbereich HLKS+SP+GA unterstützen wir das Baumanagement der Implenia in der Ausführung dieses Projekts.
Unser Aufgabenbereich umfasst die Führung der Unternehmer, Qualitätskontrollen, Sitzungsleitung und Protokolle, Kostenkontrolle, technische Beurteilung von Änderungsanträgen etc.
Persönliche Referenzen von Reto Vogt als Angestellter anderer Firmen

Suva Klinik Bellikon 2017
Als Geschäftsführer der BTSC Haustechnik GmbH
Als Mitglied der Taskforce Haustechnik, welche vom Generalunternehmer Gross AG eingesetzt wurde stellten wir die Ausführungsplanung des Neubaus vor Ort fertig, lösten koordinative Probleme und trugen so unseren Teil für eine fristgerechte und korrekte Fertigstellung des Projekts bei

ETH CLA Kälteerzeugung (2 Projekte) 2011-2015
Als Projekteleiter Heizung- Kälte bei Amstein + Walthert AG, Zürich
Für den Neubau des Rechenzentrums im LEE Gebäude der ETH war die Kälteerzeugung noch nicht ausgelegt. Daher erstellten wir ein Kälteprovisorium auf dem Dach des CLA Gebäudes nebenan, mit einer Leistung von 1.4 MW. In einem zweiten Schritt ersetzten wir zwei alte Kältemaschinen im Technikraum des CLA durch eine Ammoniak- Kältemaschine von 1.0 MW Kälteleistung.
Kontakt
Wir freuen uns von Ihnen zu hören.
Wir beraten Sie gerne
+41 79 916 99 51
info-at-revoing.ch
revo ingenieure gmbh
Unterriedstrasse 19
5452 Oberrohrdorf
Mo. -Fr. 8:00 - 17:00
Sa. + So. geschlossen